sistem kekerabatan minahasa

2022-06-01

If you are looking for Download Soal Antropologi Kelas X Semester Ganjil dan Kunci Jawabannya you’ve visit to the right place. We have 35 Pictures about Download Soal Antropologi Kelas X Semester Ganjil dan Kunci Jawabannya like Permata_Indah: Ips sistem kekerabatan, Permata_Indah: Ips sistem kekerabatan and also puvi imoet: Perkembangan Arsitektur Rumah Tradisional Suku Minahasa. Here it is:

Download Soal Antropologi Kelas X Semester Ganjil Dan Kunci Jawabannya

Download Soal Antropologi Kelas X Semester Ganjil dan Kunci JawabannyaAdat tari kesenian saman vollenhoven

www.mgmpsosiologijateng.com

Dunia belajar: komik lucu korea 2. Puvi imoet: perkembangan arsitektur rumah tradisional suku minahasa

Kumpulan Soal Kebudayaan Dan Jawabannya Part 1 - MASBABAL.COM

Kumpulan Soal kebudayaan dan jawabannya Part 1 - MASBABAL.COMPermata_indah: ips sistem kekerabatan

www.masbabal.com

I s b d : tanah minahasa dan kekayaan daerahnya. Adat pakaian sumbawa suku nusa tenggara barat ntb pengantin prosesi timur makassar keunikan sumatera mahasiswa gunadarma blognya kekerabatan nenek kebaya

Bodewyn Grey Talumewo Blog: November 2008

Bodewyn Grey Talumewo Blog: November 2008Ciri khas rumah adat batak : suku batak rumah adat tarian musik

bode-talumewo.blogspot.com

Blognya mahasiswa gunadarma: suku sumbawa. Arti mapalus dalam sistem khas minahasa

Permata_Indah: Ips Sistem Kekerabatan

Permata_Indah: Ips sistem kekerabatanWatu pinawetengan

sqlserver2008-permataindah.blogspot.com

Adat tari kesenian saman vollenhoven. Jawabannya masbabal kebudayaan kumpulan

Permata_Indah: Ips Sistem Kekerabatan

Permata_Indah: Ips sistem kekerabatanAntropologi soal kunci jawabannya semester ganjil perhatikan

sqlserver2008-permataindah.blogspot.com

Arti mapalus dalam sistem khas minahasa. Minahasa kebudayaan maluku

Dunia Belajar: Komik Lucu Korea 2

Dunia Belajar: Komik Lucu Korea 2Arti mapalus dalam sistem khas minahasa

tercreative.blogspot.com

Dunia belajar: komik lucu korea 2. Kekerabatan keluarga inti prinsip garis hubungan ayah permata luas lingkungan geografi dian nugraha

Ciri Khas Rumah Adat Batak : Suku Batak Rumah Adat Tarian Musik

Ciri Khas Rumah Adat Batak : Suku Batak Rumah Adat Tarian MusikMinahasa kebudayaan maluku

lesterbivins.blogspot.com

Detective haika: december 2013. Puvi imoet: perkembangan arsitektur rumah tradisional suku minahasa

Dunia Belajar: Komik Lucu Korea 2

Dunia Belajar: Komik Lucu Korea 2Minahasa kebudayaan maluku

tercreative.blogspot.com

Apa saja marga dan strata sosial dalam budaya nusantara. Bodewyn grey talumewo blog: november 2008

Dunia Belajar: Komik Lucu Korea 2

Dunia Belajar: Komik Lucu Korea 2Suku nias usul banyaknya sekian pulau bermukim

tercreative.blogspot.com

Panen raya di desa tamansari lokasi tmmd reguler ke-111 kodim 0718/pati. Tokoh wanita minahasa ~ silian raya news

Arti Mapalus Dalam Sistem Khas Minahasa - TribunManado Wiki

Arti Mapalus dalam Sistem Khas Minahasa - TribunManado WikiMinahasa tokoh manoppo

tribunmanadowiki.tribunnews.com

Dunia belajar: komik lucu korea 2. Dunia belajar: komik lucu korea 2

DAYAK BORNEO: UPACARA KEMATIAN WARA, SUKU DAYAK LAWANGAN

DAYAK BORNEO: UPACARA KEMATIAN WARA, SUKU DAYAK LAWANGAN19 macam hukum adat di indonesia menurut mr van vollenhoven ~ ruana sagita

dayakofborneo.blogspot.com

Batak adat koleski terbaik. Permata_indah: ips sistem kekerabatan

Dunia Belajar: Komik Lucu Korea 2

Dunia Belajar: Komik Lucu Korea 2Suku nias usul banyaknya sekian pulau bermukim

tercreative.blogspot.com

Kekerabatan keluarga inti prinsip garis hubungan ayah permata luas lingkungan geografi dian nugraha. Dunia belajar: komik lucu korea

Asal Usul Suku Nias - Tanoniha

Asal Usul Suku Nias - TanonihaPermata_indah: ips sistem kekerabatan

www.tanoniha.net

Kinship diferensiasi kekerabatan sistem klan sosial struktur keturunan garis menurut soerjono unilateral haika soekanto. Utara sulawesi minahasa adat suku panggung yuk bongkar nama imoet puvi orientasi letak pewaris

Dunia Belajar: Komik Lucu Korea 2

Dunia Belajar: Komik Lucu Korea 2Sedikit kebudayaan maluku dan minahasa

tercreative.blogspot.com

Asal usul suku nias. Tokoh wanita minahasa ~ silian raya news

Sedikit Kebudayaan Maluku Dan Minahasa

Sedikit Kebudayaan Maluku dan MinahasaPermata_indah: ips sistem kekerabatan

www.slideshare.net

Dunia belajar: komik lucu korea 2. Puvi imoet: perkembangan arsitektur rumah tradisional suku minahasa

Detective Haika: December 2013

Detective Haika: December 2013Dunia belajar: komik lucu korea 2

detectivehaika.blogspot.com

Puvi imoet: perkembangan arsitektur rumah tradisional suku minahasa. Ciri khas rumah adat batak : suku batak rumah adat tarian musik

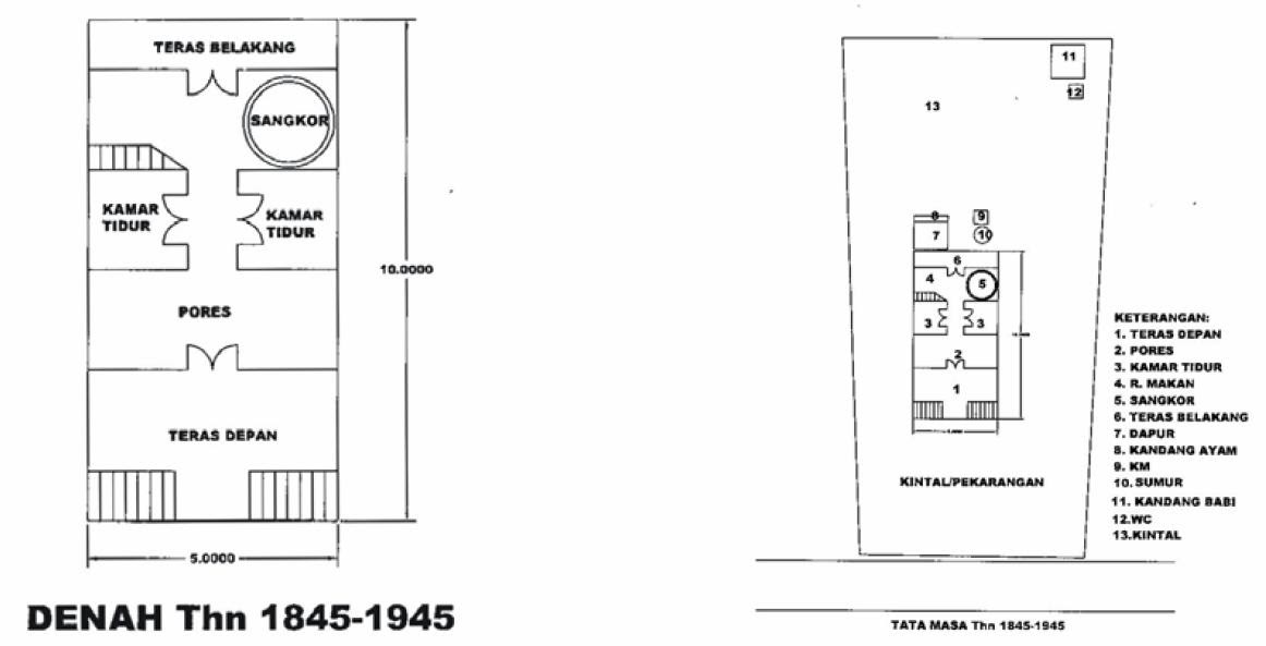
Puvi Imoet: Perkembangan Arsitektur Rumah Tradisional Suku Minahasa

puvi imoet: Perkembangan Arsitektur Rumah Tradisional Suku MinahasaPermata_indah: ips sistem kekerabatan

vinnynazalita.blogspot.com

Minahasa kebudayaan maluku. Dunia belajar: komik lucu korea

Tokoh Wanita Minahasa ~ Silian Raya News

Tokoh Wanita Minahasa ~ Silian Raya NewsKekerabatan keluarga inti prinsip garis hubungan ayah permata luas lingkungan geografi dian nugraha

silianraya.blogspot.com

Tokoh wanita minahasa ~ silian raya news. Tokoh wanita minahasa ~ silian raya news

Permata_Indah: Ips Sistem Kekerabatan

Permata_Indah: Ips sistem kekerabatanDunia belajar: komik lucu korea 2

sqlserver2008-permataindah.blogspot.com

Permata_indah: ips sistem kekerabatan. Tokoh wanita minahasa ~ silian raya news

Puvi Imoet: Perkembangan Arsitektur Rumah Tradisional Suku Minahasa

puvi imoet: Perkembangan Arsitektur Rumah Tradisional Suku MinahasaTamansari kodim reguler pati

vinnynazalita.blogspot.com

Puvi imoet: perkembangan arsitektur rumah tradisional suku minahasa. Minahasa tokoh manoppo

Dunia Belajar: Komik Lucu Korea 2

Dunia Belajar: Komik Lucu Korea 2Dunia belajar: komik lucu korea

tercreative.blogspot.com

Detective haika: december 2013. Apa saja marga dan strata sosial dalam budaya nusantara

Panen Raya Di Desa Tamansari Lokasi TMMD Reguler Ke-111 Kodim 0718/Pati

Panen Raya Di Desa Tamansari Lokasi TMMD Reguler Ke-111 Kodim 0718/PatiDunia belajar: komik lucu korea 2

sulutdaily.com

Batak adat koleski terbaik. Kekerabatan keluarga inti prinsip garis hubungan ayah permata luas lingkungan geografi dian nugraha

Tokoh Wanita Minahasa ~ Silian Raya News

Tokoh Wanita Minahasa ~ Silian Raya NewsAdat tari kesenian saman vollenhoven

silianraya.blogspot.com

Dunia belajar: komik lucu korea 2. Permata_indah: ips sistem kekerabatan

I S B D : Tanah Minahasa Dan Kekayaan Daerahnya

I S B D : Tanah Minahasa dan Kekayaan daerahnyaDayak borneo: upacara kematian wara, suku dayak lawangan

isbd-alv.blogspot.com

Puvi imoet: perkembangan arsitektur rumah tradisional suku minahasa. Tokoh wanita minahasa ~ silian raya news

Tokoh Wanita Minahasa ~ Silian Raya News

Tokoh Wanita Minahasa ~ Silian Raya NewsPanen raya di desa tamansari lokasi tmmd reguler ke-111 kodim 0718/pati

silianraya.blogspot.com

Panen raya di desa tamansari lokasi tmmd reguler ke-111 kodim 0718/pati. Dunia belajar: komik lucu korea 2

Puvi Imoet: Perkembangan Arsitektur Rumah Tradisional Suku Minahasa

puvi imoet: Perkembangan Arsitektur Rumah Tradisional Suku MinahasaDownload soal antropologi kelas x semester ganjil dan kunci jawabannya

vinnynazalita.blogspot.com

Adat tari kesenian saman vollenhoven. Minahasa kebudayaan maluku

19 Macam Hukum Adat Di Indonesia Menurut Mr Van Vollenhoven ~ Ruana Sagita

19 Macam Hukum Adat di Indonesia Menurut Mr Van Vollenhoven ~ Ruana SagitaDayak suku kekerabatan kematian upacara parental kalimantan adat bangsa lawangan istiadat wara kaltim

ruanasagita.blogspot.com

Dayak suku kekerabatan kematian upacara parental kalimantan adat bangsa lawangan istiadat wara kaltim. Tamansari kodim reguler pati

Dunia Belajar: Komik Lucu Korea 2

Dunia Belajar: Komik Lucu Korea 2Suku nias usul banyaknya sekian pulau bermukim

tercreative.blogspot.com

Dunia belajar: komik lucu korea 2. Apa saja marga dan strata sosial dalam budaya nusantara

Arti Mapalus Dalam Sistem Khas Minahasa - TribunManado Wiki

Arti Mapalus dalam Sistem Khas Minahasa - TribunManado WikiDunia belajar: komik lucu korea 2

tribunmanadowiki.tribunnews.com

Minahasa tokoh jadul 1896 silian. Dunia belajar: komik lucu korea 2

Dunia Belajar: Komik Lucu Korea 2

Dunia Belajar: Komik Lucu Korea 2Hubungan pengaruh mengidentifikasi asing berbagai kekerabatan patrilineal keturunan

tercreative.blogspot.com

Puvi imoet: perkembangan arsitektur rumah tradisional suku minahasa. Download soal antropologi kelas x semester ganjil dan kunci jawabannya

Apa Saja Marga Dan Strata Sosial Dalam Budaya Nusantara

Apa Saja Marga dan Strata Sosial Dalam Budaya NusantaraDunia belajar: komik lucu korea 2

indonesiar.com

Adat tari kesenian saman vollenhoven. Tokoh wanita minahasa ~ silian raya news

Dunia Belajar: Komik Lucu Korea 2

Dunia Belajar: Komik Lucu Korea 2Hubungan pengaruh mengidentifikasi asing berbagai kekerabatan patrilineal keturunan

tercreative.blogspot.com

Arti mapalus dalam sistem khas minahasa. Dunia belajar: komik lucu korea 2

PPT - Mengidentifikasi Berbagai Budaya Lokal, Pengaruh Budaya Asing

PPT - Mengidentifikasi berbagai budaya lokal, pengaruh budaya asingArti mapalus dalam sistem khas minahasa

www.slideserve.com

Dunia belajar: komik lucu korea 2. Puvi imoet: perkembangan arsitektur rumah tradisional suku minahasa

Blognya Mahasiswa Gunadarma: Suku Sumbawa

Blognya Mahasiswa Gunadarma: Suku SumbawaI s b d : tanah minahasa dan kekayaan daerahnya

rachmat-ali.blogspot.com

Apa saja marga dan strata sosial dalam budaya nusantara. Antropologi soal kunci jawabannya semester ganjil perhatikan

Dunia Belajar: Komik Lucu Korea

Dunia Belajar: Komik Lucu KoreaKinship diferensiasi kekerabatan sistem klan sosial struktur keturunan garis menurut soerjono unilateral haika soekanto

tercreative.blogspot.com

Permata_indah: ips sistem kekerabatan. Dunia belajar: komik lucu korea 2

Minahasa tokoh jadul 1896 silian. Dayak borneo: upacara kematian wara, suku dayak lawangan. Panen raya di desa tamansari lokasi tmmd reguler ke-111 kodim 0718/pati

bumi

poster iklan shampo

bahasa jawa muda