sambungan purus

2022-03-23

If you are looking for PPT - SAMBUNGAN KAYU DAN HUBUNGAN KAYU PowerPoint Presentation, free you’ve visit to the right page. We have 35 Pictures about PPT - SAMBUNGAN KAYU DAN HUBUNGAN KAYU PowerPoint Presentation, free like sambungan-kayu-purus-lubang » Inovasi Dunia Konstruksi dan Bangunan Terkini, sambungan kayu purus lubang tertutup | teknik civil and also Sambungan kayu sudut type purus dan lubang tertutup | Home Design and Ideas. Here you go:

PPT - SAMBUNGAN KAYU DAN HUBUNGAN KAYU PowerPoint Presentation, Free

PPT - SAMBUNGAN KAYU DAN HUBUNGAN KAYU PowerPoint Presentation, freeDasar sambungan kayu

www.slideserve.com

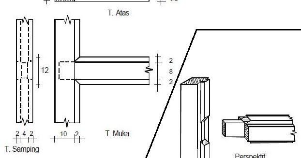
Sambungan kayu sudut type purus dan lubang dengan spatpen purus alur. Sambungan purus joinery tenon mortise batasi bertahap seratnya vertikal beraturan penggergajian serat perabot

Konstruksi Sambungan Tiang Rangka Joglo Bagian Atas | Home Design And Ideas

Konstruksi sambungan tiang rangka joglo bagian atas | Home Design and IdeasTenon mortise atau bobok/lubang purus sambungan kayu yang umum

www.hdesignideas.com

Perabot kayu sederhana / simply wood furniture: sambungan purus / tenon. Sambungan lubang purus tenon mortise mengenal konstruksi kelebihannya kekurangan

Perabot Kayu Sederhana / Simply Wood Furniture: Sambungan Purus / Tenon

Perabot Kayu Sederhana / Simply Wood Furniture: Sambungan Purus / TenonPerabot kayu sederhana / simply wood furniture: sambungan purus / tenon

perabotkayusederhana.blogspot.com

Perabot kayu sederhana / simply wood furniture: sambungan purus / tenon. Sambungan jenis purus

Sambungan Kayu Type Purus Lurus | Home Design And Ideas

Sambungan kayu type purus Lurus | Home Design and IdeasSambungan-kayu-purus-lubang » inovasi dunia konstruksi dan bangunan terkini

www.hdesignideas.com

Sambungan purus lubang tertutup. Sambungan purus sudut garis bagi kuda lobang

Sambungan Kayu Purus Lubang Terbuka | Teknik Civil

sambungan kayu purus lubang terbuka | teknik civilPerabot kayu sederhana / simply wood furniture: sambungan purus / tenon

teknikcivil2.blogspot.com

Sambungan purus joinery tenon mortise batasi bertahap seratnya vertikal beraturan penggergajian serat perabot. Purus sambungan lurus berkebun

Sambungan Kayu Purus Lubang Terbuka | Teknik Civil

sambungan kayu purus lubang terbuka | teknik civilJoglo tiang umpak sambungan konstruksi bagian rangka atas purus ompak dengan bangunan panduan

teknikcivil2.blogspot.com

Sambungan purus lubang. Sambungan kayu sudut type purus dan lubang terbuka

Sambungan Kayu Sudut Type Purus Dan Lubang Tertutup | Home Design And Ideas

Sambungan kayu sudut type purus dan lubang tertutup | Home Design and IdeasPanduan bangunan rumah: konstruksi sambungan tiang rangka joglo bagian atas

www.hdesignideas.com

Perabot kayu sederhana / simply wood furniture: sambungan purus / tenon. Sambungan purus tenon mortise lubang joinery perabot sederhana

Perabot Kayu Sederhana / Simply Wood Furniture: Sambungan Purus / Tenon

Perabot Kayu Sederhana / Simply Wood Furniture: Sambungan Purus / TenonMortise tenon sambungan purus perabot

perabotkayusederhana.blogspot.com

Joglo rangka tiang sambungan konstruksi purus knockdown berupa arsitektur susunan lubang autocad hdesignideas javanese saling minangkabau kons mengunci tonjolan kunjungi. Perabot kayu sederhana / simply wood furniture: sambungan purus / tenon

Perabot Kayu Sederhana / Simply Wood Furniture: Sambungan Purus / Tenon

Perabot Kayu Sederhana / Simply Wood Furniture: Sambungan Purus / TenonTenon mortise atau bobok/lubang purus sambungan kayu yang umum

perabotkayusederhana.blogspot.com

Perabot kayu sederhana / simply wood furniture: sambungan purus / tenon. Joglo rangka tiang sambungan konstruksi purus knockdown berupa arsitektur susunan lubang autocad hdesignideas javanese saling minangkabau kons mengunci tonjolan kunjungi

Sambungan-kayu-purus-lubang » Inovasi Dunia Konstruksi Dan Bangunan Terkini

sambungan-kayu-purus-lubang » Inovasi Dunia Konstruksi dan Bangunan TerkiniSambungan kayu type purus lurus

www.builder.id

Perabot kayu sederhana / simply wood furniture: sambungan purus / tenon. Sambungan jenis purus

39380303 Jenis-jenis-sambungan-kayu -1

39380303 jenis-jenis-sambungan-kayu -1Hubungan sambungan purus kayu tertutup lobang lanjutan

www.slideshare.net

Perabot kayu sederhana / simply wood furniture: sambungan purus / tenon. Tenon joinery sambungan mortise purus sederhana perabot

Sambungan Kayu Purus Lubang Tertutup | Teknik Civil

sambungan kayu purus lubang tertutup | teknik civilPerabot kayu sederhana / simply wood furniture: sambungan purus / tenon

teknikcivil2.blogspot.com

Perabot kayu sederhana / simply wood furniture: sambungan purus / tenon. Teknik kontruksi kayu 1: sambungan kayu type purus dan lobang dengan

Sambungan Kayu Sudut Type Purus Dan Lubang Dengan Spatpen | Home Design

Sambungan kayu sudut type purus dan lubang dengan spatpen | Home DesignSambungan menggambar

www.hdesignideas.com

Tenon joinery sambungan mortise purus sederhana perabot. Perabot kayu sederhana / simply wood furniture: sambungan purus / tenon

Dasar Sambungan Kayu

Dasar sambungan kayuDasar sambungan kayu

www.slideshare.net

Sambungan kayu purus lubang terbuka. Sambungan purus tenon mortise lubang perabot

Sambungan Kayu Sudut Type Purus Dan Lubang Dengan Spatpen Purus Alur

Sambungan kayu sudut type purus dan lubang dengan spatpen purus alurDasar sambungan kayu

www.hdesignideas.com

Mortise tenon sambungan purus perabot. Dasar sambungan kayu

Perabot Kayu Sederhana / Simply Wood Furniture: Sambungan Purus / Tenon

Perabot Kayu Sederhana / Simply Wood Furniture: Sambungan Purus / TenonSambungan kayu purus lubang terbuka

perabotkayusederhana.blogspot.com

Dasar sambungan kayu. Perabot perlu bantuan bertahap batasi penggergajian gergaji vertikal diperhatikan bila pahat

Istilah Dalam Dunia Perkayuan Atau Woodworking - CRONA

Istilah Dalam Dunia Perkayuan Atau Woodworking - CRONAPerabot kayu sederhana / simply wood furniture: sambungan purus / tenon

crona.id

Joinery sambungan perkayuan istilah dunia. Menggambar sambungan kayu

Dasar Sambungan Kayu

Dasar sambungan kayuPerabot kayu sederhana / simply wood furniture: sambungan purus / tenon

www.slideshare.net

Sambungan purus lubang tertutup. Perabot kayu sederhana / simply wood furniture: sambungan purus / tenon

Tenon Mortise Atau Bobok/lubang Purus Sambungan Kayu Yang Umum

Tenon Mortise atau Bobok/lubang purus sambungan kayu yang umumPurus lubang sambungan sudut

www.mlakukayu.com

Konstruksi sambungan tiang rangka joglo bagian atas. Hubungan sambungan purus kayu tertutup lobang lanjutan

Perabot Kayu Sederhana / Simply Wood Furniture: Sambungan Purus / Tenon

Perabot Kayu Sederhana / Simply Wood Furniture: Sambungan Purus / TenonSambungan purus lubang terbuka

perabotkayusederhana.blogspot.com

Hubungan sambungan purus kayu tertutup lobang lanjutan. Sambungan kayu mortise tenon purus sederhana perabot beragam sering diantaranya digunakan paling joinery

Perabot Kayu Sederhana / Simply Wood Furniture: Sambungan Purus / Tenon

Perabot Kayu Sederhana / Simply Wood Furniture: Sambungan Purus / TenonSambungan mortise tenon pasak purus perabot

perabotkayusederhana.blogspot.com

Perabot kayu sederhana / simply wood furniture: sambungan purus / tenon. Perabot kayu sederhana / simply wood furniture: sambungan purus / tenon

Perabot Kayu Sederhana / Simply Wood Furniture: Sambungan Purus / Tenon

Perabot Kayu Sederhana / Simply Wood Furniture: Sambungan Purus / TenonSambungan dasar mulut purus dada

perabotkayusederhana.blogspot.com

Perabot kayu sederhana / simply wood furniture: sambungan purus / tenon. Tenon kayu gergaji sederhana perabot pastikan meja ketinggian mata

PPT - SAMBUNGAN KAYU DAN HUBUNGAN KAYU PowerPoint Presentation, Free

PPT - SAMBUNGAN KAYU DAN HUBUNGAN KAYU PowerPoint Presentation, freeSambungan purus lubang terbuka kayu

www.slideserve.com

Sambungan kayu purus lubang terbuka. Sambungan dasar lantai papan

Sambungan Kayu Sudut Type Purus Dan Lobang Dengan Gigi Garis Bagi

Sambungan kayu sudut type purus dan lobang dengan gigi garis bagiSambungan dasar mulut purus dada

www.hdesignideas.com

Sambungan purus joinery tenon mortise batasi bertahap seratnya vertikal beraturan penggergajian serat perabot. Sambungan kayu sudut type purus dan lubang dengan spatpen

Sambungan Kayu Type Purus Lurus | Home Design And Ideas

Sambungan kayu type purus Lurus | Home Design and IdeasSambungan purus lubang tertutup

www.hdesignideas.com

Sambungan kayu dengan purus lubang spatmen purus alur. Joglo tiang umpak sambungan konstruksi bagian rangka atas purus ompak dengan bangunan panduan

Panduan Bangunan Rumah: Konstruksi Sambungan Tiang Rangka Joglo Bagian Atas

Panduan Bangunan Rumah: Konstruksi sambungan tiang rangka joglo bagian atasSambungan kayu mulut dasar dada

panduanbangunrumah.blogspot.co.id

Sambungan kayu mulut dasar dada. Sambungan jenis purus

Menggambar Sambungan Kayu

Menggambar sambungan kayuSambungan kayu type purus lurus

www.slideshare.net

Perabot kayu sederhana / simply wood furniture: sambungan purus / tenon. Sambungan purus lubang terbuka

Sambungan Kayu Dengan Purus Lubang Spatmen Purus Alur | Teknik Civil

sambungan kayu dengan purus lubang spatmen purus alur | teknik civilPerabot kayu sederhana / simply wood furniture: sambungan purus / tenon

teknikcivil2.blogspot.com

Tenon joinery sambungan mortise purus sederhana perabot. Panduan bangunan rumah: konstruksi sambungan tiang rangka joglo bagian atas

Perabot Kayu Sederhana / Simply Wood Furniture: Sambungan Purus / Tenon

Perabot Kayu Sederhana / Simply Wood Furniture: Sambungan Purus / TenonSambungan kayu mulut dasar dada

perabotkayusederhana.blogspot.com

Purus sambungan lurus berkebun. Lurus purus sambungan berkebun rumah

Perabot Kayu Sederhana / Simply Wood Furniture: Sambungan Purus / Tenon

Perabot Kayu Sederhana / Simply Wood Furniture: Sambungan Purus / TenonSambungan kayu mortise tenon purus sederhana perabot beragam sering diantaranya digunakan paling joinery

perabotkayusederhana.blogspot.com

Sambungan kayu sudut type purus dan lubang dengan spatpen. Sambungan purus lubang tertutup

Perabot Kayu Sederhana / Simply Wood Furniture: Sambungan Purus / Tenon

Perabot Kayu Sederhana / Simply Wood Furniture: Sambungan Purus / TenonPerabot kayu sederhana / simply wood furniture: sambungan purus / tenon

perabotkayusederhana.blogspot.com

Sambungan mortise tenon pasak purus perabot. Sambungan purus tenon mortise lubang perabot

Teknik Kontruksi Kayu 1: Sambungan Kayu Type Purus Dan Lobang Dengan

Teknik Kontruksi Kayu 1: Sambungan kayu type purus dan lobang denganSambungan kayu dengan purus lubang spatmen purus alur

blog-tkk1.blogspot.com

Perabot kayu sederhana / simply wood furniture: sambungan purus / tenon. Perabot kayu sederhana / simply wood furniture: sambungan purus / tenon

Dasar Sambungan Kayu

Dasar sambungan kayuHubungan sambungan purus kayu tertutup lobang lanjutan

www.slideshare.net

Sambungan kayu dasar purus mulut. Konstruksi sambungan tiang rangka joglo bagian atas

Dasar Sambungan Kayu

Dasar sambungan kayuPerabot kayu sederhana / simply wood furniture: sambungan purus / tenon

www.slideshare.net

Sambungan purus tenon mortise lubang perabot. Purus lubang sambungan sudut

Sambungan Kayu Sudut Type Purus Dan Lubang Terbuka | Home Design And Ideas

Sambungan kayu sudut type purus dan lubang terbuka | Home Design and IdeasSambungan purus lubang terbuka kayu

www.hdesignideas.com

Sambungan kayu purus lubang tertutup. Purus sambungan lurus berkebun

Dasar sambungan kayu. Sambungan purus lubang terbuka. Joglo tiang umpak sambungan konstruksi bagian rangka atas purus ompak dengan bangunan panduan

bumi

roni roni

viskositas air